[RENOVATED] Eco Business Park V, Bandar Puncak Alam, Semi-D Factory, 75 x145 for Sale
Offer Price - RM4,450,000, With renovation.
Key Features:
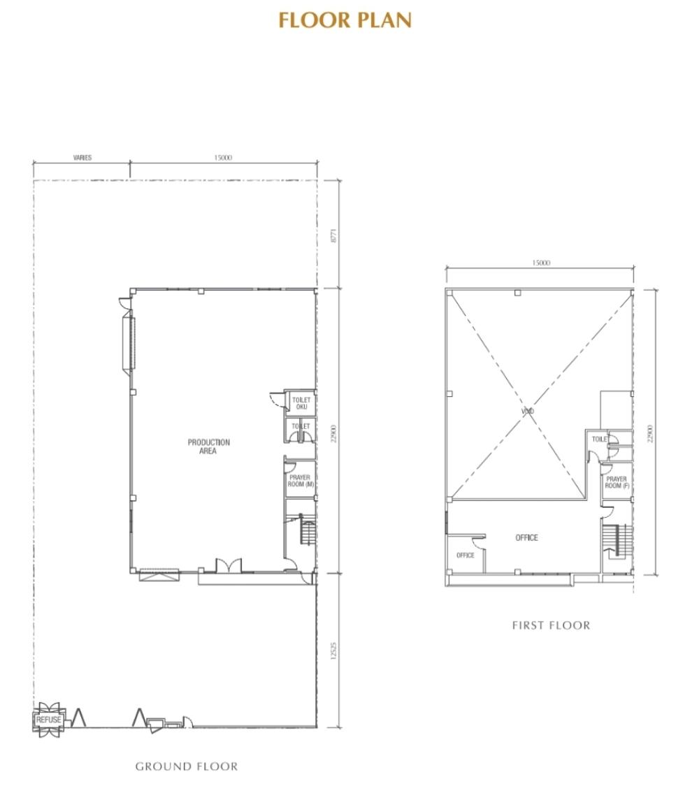
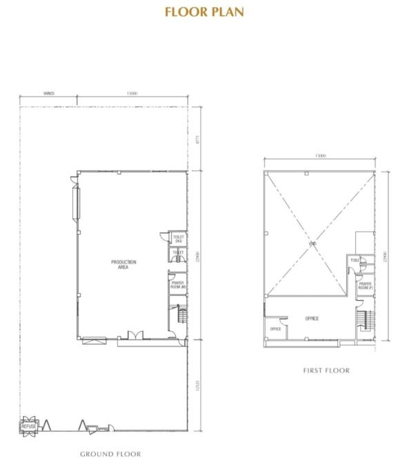
- *Size:* 75 x 145 feet, offering ample space for various industrial operations.
- *Land Area:* 10,875 square feet.
- *Build-up Area:* 4,963 square feet, allowing for manufacturing, warehousing, or office setups.
- *The ceiling height is 28ft with power supply of 150amp. Floor loading is 1 tonne/m2.
- *Design:* Modern semi-detached factory design, offering good ventilation, natural lighting, and functional layout.
- *Facilities:* Likely includes office space, production area, and storage areas.
Also may have parking facilities, loading bays, and high ceilings.
Location Advantages:
- *Strategic Location:* a well-developed industrial zone within Bandar Puncak Alam, providing easy access to major highways such as LATAR Expressway and Guthrie Corridor Expressway.
- *Accessibility:* Well-connected to towns and cities, making it convenient for logistics and transportation.
- *Amenities:* various amenities including eateries, banks, and other businesses.
Potential Uses:
- *Manufacturing:* Suitable for light to medium manufacturing activities.
- *Warehousing:* Adequate space for storage and distribution.
- *Showroom and Office:* Can also be used as a combined showroom and office space for businesses
Please contact 011-3317 9245 (Whaps/Sms) for viewing arrangement, Thanks
Factory for Sell in Eco Perniagaan V@Puncak Alam, 40000, Selangor, Klang, Bandar Puncak Alam (Phase 1 - 4),
Details
Project Name
eco perniagaan 5
Type
Factory
Land Area
10875 Sq Ft (approx)
Built Up Area
4963 Sq Ft (approx)
Dimension
75x145
Furnishing
Partially Furnished
Sale/Rent
Sell
Maintenance
0
Parking
---
Tenure
Leasehold
Date Posted
21 Aug 2024
[RENOVATED] Eco Business Park V, Bandar Puncak Alam, Semi-D Factory, 75 x145 for Sale
Offer Price - RM4,450,000, With renovation.
Key Features:
- *Size:* 75 x 145 feet, offering ample space for various industrial operations.
- *Land Area:* 10,875 square feet.
- *Build-up Area:* 4,963 square feet, allowing for manufacturing, warehousing, or office setups.
- *The ceiling height is 28ft with power supply of 150amp. Floor loading is 1 tonne/m2.
- *Design:* Modern semi-detached factory design, offering good ventilation, natural lighting, and functional layout.
- *Facilities:* Likely includes office space, production area, and storage areas.
Also may have parking facilities, loading bays, and high ceilings.
Location Advantages:
- *Strategic Location:* a well-developed industrial zone within Bandar Puncak Alam, providing easy access to major highways such as LATAR Expressway and Guthrie Corridor Expressway.
- *Accessibility:* Well-connected to towns and cities, making it convenient for logistics and transportation.
- *Amenities:* various amenities including eateries, banks, and other businesses.
Potential Uses:
- *Manufacturing:* Suitable for light to medium manufacturing activities.
- *Warehousing:* Adequate space for storage and distribution.
- *Showroom and Office:* Can also be used as a combined showroom and office space for businesses
Please contact 011-3317 9245 (Whaps/Sms) for viewing arrangement, Thanks